1885 Diamond Street #2-222

San Diego, CA 92109

$ 375,000

Price

1

Beds

1

Baths

420 Sq. Ft.

$893 / Sq. Ft.

22 Days On Market

Favorite

Share

Pacific Beach Building

Have You Been Pre-Qualified? Start Now

Listing provided by agent Darin Triolo BRE# 01376927 at Keller Williams Realty.

Last Updated: 2 days ago

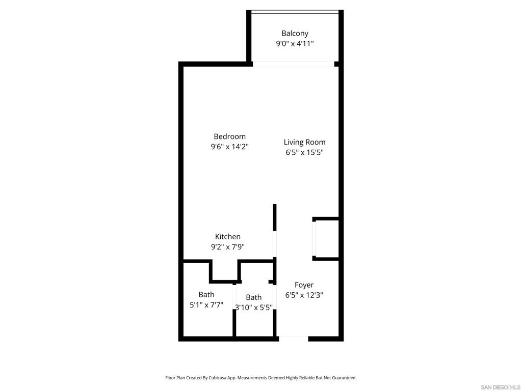
Welcome to resort-style living in the heart of Pacific Beach at The Plaza. This spacious second-floor STUDIO with 1 secure gated garage parking space (#137), offers an exceptional opportunity to enjoy the SoCal lifestyle at an affordable price point. Just minutes from the beach, dining, and everyday conveniences. Elevated above the courtyard, the unit features an oversized 8 ft X 5 ft private patio overlooking the peaceful pool and greenery, creating a perfect indoor-outdoor retreat. Recent upgrades include a new (see suppl) electric panel, updated bathroom w/ new vanity | lighting | quartz counters | refinished bathtub surround, and brushed gold light fixtures throughout, offering both comfort and an elevated style. Convenient community laundry right next door so no neighbor on one side and quiet interior location. Inside, the layout is impressively functional for a studio, with a large 6 ft X 9 ft entry area ideal for additional storage, a full-size kitchen w/ modern appliances, and a convenient eat-at bar that opens seamlessly to the living space. The living area provides ample space for flexible furniture arrangements, making it easy to create distinct living, sleeping, and work-from-home zones. The Plaza community is known for its unmatched amenities, including 5 tennis courts, 4 swimming pools, a well-equipped gym, sauna, BBQ areas, massive community room and extended outdoor deck overlooking the beautiful central water feature, billiard room, library, and lush landscaped grounds that feel like a year-round resort. Located just a 3-minute walk to shopping, restaurants, and nightlife along Garnet Avenue, and less than 2 miles from the beach, this home offers effortless access to everything Pacific Beach is known for. Walk, bike, or cruise to the sand while enjoying a low-maintenance lifestyle that doesn’t break the bank. A rare value in one of San Diego’s most desirable coastal communities.

Show More
Property Type Condominium
Lot Size 428,219 sq. ft.
Year Built 1975
MLS # 2600712SD
Listing Type Active
Heating Electric, Radiant
Pool Community
Laundry Electric Dryer Hookup, Community
Parking Assigned, Gated, Community Structure

Payment Calculator

40% Complete (success)
80% Complete (danger)
20% Complete
80% Complete (danger)
60% Complete (warning)
Principal and Interest
Property Taxes
Homeowners' Insurance
HOA Dues
Mortgage Insurance
Image Calculator Icon Customize Calculations | Compare Mortgage Rates

Property Details for: 1885 Diamond Street #2-222

Interior Features

Bathroom Information
  • 1 full bath
Laundry Information
  • Electric Dryer Hookup
  • Community
Heating & Cooling
  • Electric
  • Radiant

Parking / Garage, Multi-Unit Information, Location Details

Parking Information
  • Assigned
  • Gated
  • Community Structure

Exterior Features

Pool & Spa Information
  • Community
  • Community

Property / Lot Details

Property Features
  • Pool
  • Courtyard
Lot Information
  • Lot Size (Sq. Ft) 428,219
Property Information
  • Attached
  • Tax Parcel Number: 4165202658

Nearby Businesses

  • Grocery Stores
  • Drug Stores
  • Coffee Shops
  • Restaurants
  • Health & Medical
  • Fitness & Activity
  • Arts & Entertainment
  • Nightlife & Bars
    Browse all businesses in San Diego, CA, 92109

    Tour This Condo

    MONDAY

    2

    FEB

    TUESDAY

    3

    FEB

    WEDNESDAY

    4

    FEB

    THURSDAY

    5

    FEB

    FRIDAY

    6

    FEB

    SATURDAY

    7

    FEB

    SUNDAY

    8

    FEB

    Schedule A Tour
    Ryan Case, Licensed Realtor & Team Lead

    Ryan Case

    Licensed Realtor & Team Lead

    619-314-5333 Contact Ryan Case
    Listing provided by agent Darin Triolo BRE# 01376927 at Keller Williams Realty.

    Last Updated: 2 days ago